氣動流量調節閥控制方案
ZXP-L型分體式氣動薄膜流量調節閥采用氣動薄膜單座調節閥(或防爆型氣動薄膜調節閥) +智能PID調節器+流量計及3芯屏蔽線等附件組成,具有高控制精度,*高可達+0.2%的控制精度,調節性能及控制精度遠超過常規自力式流量調節閥。
該閥采用自反饋系統,通過流量計(4)采集被調介質流量的實時變化,經智能PID調節器轉換為DC4 _20mA的標準控制信號來控制氣動薄膜調節閥(1)的開啟度,能直接對燕汽、熱氣、熱油等介質的流量實行自動PID調節和控制。
1.氣動調節閥 1,1.過濾減壓器 1,2.電氣閥門定位器 2.手動截止閥 3. 智能PID調節器 4.法蘭式流量計
接線說明:
1、智能PID調節器(3)端子22、23、 24接流量計(4)的對應接線端子(注意端子顏色) ;2、智能PID調節器(3)端子25和端子26接氣動調節閥(1)的定位器(1.2)接線端子:
3、智能PID調節器(3)端子11和端子12接AC100~240V 50/60HZ電壓;
4、空氣過濾減壓器(1.1)接0.4MPa清潔空氣。
注:①所有儀表在出廠前均已調試完成,在現場只需按圖示接線完成即可正常工作,如現場控制值波動較大,請重新調試系統相關P、1. D值,即使用智能PID調節器(3)自整定功能,具體操作步驟參見NHR5000型智能PID調節器使用說明書(P17之7.3條) ;
②由于智能PID調節器(3)無防爆型,安裝在要求防爆場合必須將智能PID調節器(3)置于防爆控制箱內或將其安裝在非防爆區,且智能PID調節器(3)與調節閥(1)的控制信號線必須用屏蔽線(3芯、1.5平方) 。
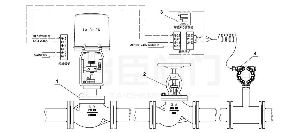
電動流量調節閥控制方案
ZAZP-L型分體式電動流量調節閥采用電動單座調節閥(或防爆型電動調節閥) +智能PID調節器+流量計及3芯屏蔽線等附件組成,具有高控制精度,*高可達+0.2%的控制精度,調節性能及控制精度遠超過常規自力式流量調節閥。
該閥采用自反饋系統,通過流量計(4) 采集被調介質流量的實時變化,經智能PID調節器轉換為DC4-20mA的標準控制信號來控制氣動薄膜調節閥(1) 的開啟度,能直接對燕汽、熱氣、熱油等介質的流量實行自動PID調節和控制。

1.電動調節閥 2.手動截止閥 3.智能PID調節器 4.法蘭式流量計
接線說明:
1、智能PID調節器(3)端子22、23、 24接流量計(4)的對應接線端子(注意端子顏色) ;2、智能PID調節器(3)端子25和端子26接電動調節閥(1)的端子5和端子6(注意正負極);3、智能PID調節器(3)端子11和端子12接AC100~240V 50/60HZ電壓;
4、電動調節閥(1) 端子1和端子2接AC220V電壓。.
注:①所有儀表在出廠前均已調試完成,在現場只需按圖示接線完成即可正常工作,如現場控制值波動較大,請重新調試系統相關P、1. D值,即使用智能PID調節器(3)自整定功能,具體操作步驟參見NHR5000型智能PID調節器使用說明書(P17之7.3條) ;
②由于智能PID調節器(3)無防爆型,安裝在要求防爆場合必須將智能PID謂節器(3)置于防爆控制箱內或將其安裝在非防爆區,且智能PID調節器(3)與調節閥(1)的控制信號線必須用屏蔽線(3芯、1.5平方)。
15900877899 15900877899