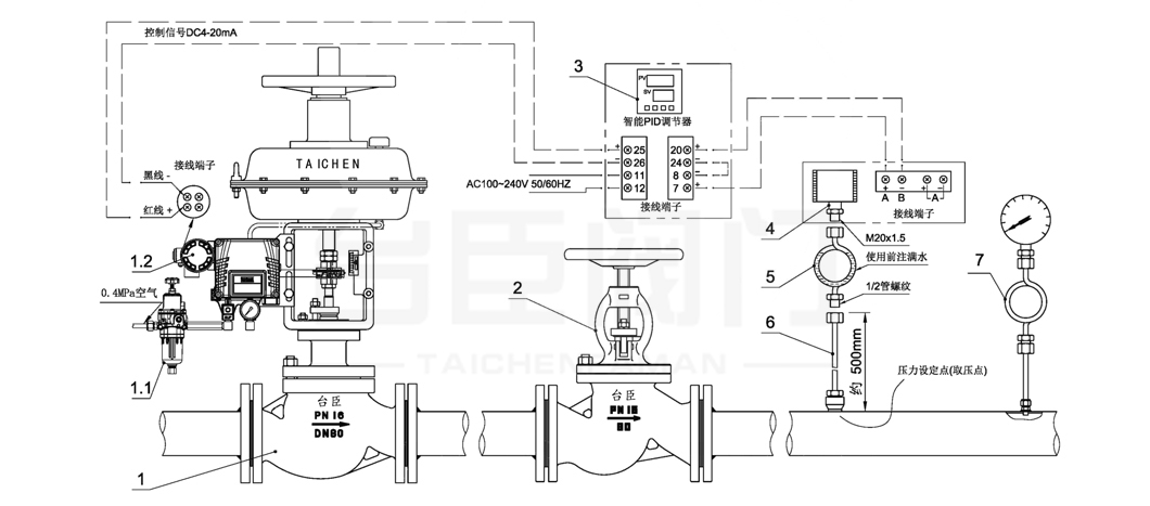
氣動壓力調節閥控制方案
ZXP-Y型分體式氣動薄膜壓力調節閥采用氣動薄膜單座調節閥(或防爆型氣動薄膜調節閥)、智能PID調節器+壓力變送器及3芯屏蔽線等附件組成,具有高控制精度,*高可達+0.2%的控制精度,調節性能及控制精度遠超過常規自力式壓力調節閥。
該閥采用自反饋系統,通過壓力變送器(4)采集被調介質壓力的實時變化,經智能PID調節器(3)轉換為DC4-20mA的標準控制信號來控制電動調節閥(1)的開啟度,能直接對蒸汽、熱氣、熱油等介質的壓力實行自動PID調節和控制。

1.氣動調節閥 1,1.過濾減壓器 1,2.電氣閥門定位器 2.手動截止閥 3.智能PID調節器 4.壓力變送器 5.緩沖管 6.延長管 7.壓力表組件
接線說明:
1、智能PID調節器(3)端子8與端子24短接;
2、智能PID調節器(3)端于20接壓力變送器(3) B-;
3、智能PID調節器(3)端子7接壓力變送器(3) A+; .
4、智能PID調節器(3)端子25和端子26接氣動調節閥(1)的定位器(1.2)接線端子;
5、智能PID調節器(3)端子11和端子12接AC100-240V 50/60HZ電壓:
6、空氣過濾減壓器(1.1)接0.4MPa清潔空氣; .
7、延長管(6) 需現場配制,主要用于降低變送器工作溫度。
注:①所有儀表在出廠前均已調試完成,在現場只需按圖示接線完成即可正常工作,如現場控制值波動較大,請重新調試系統相關P、1. D值,即使用智能PID調節器(3)自整定功能,具體操作步驟參見NHR5000型智能PID調節器使用說明書(P17之7.3條) ;
②由于智能PID調節器(3)無防爆型,安裝在要求防熳場合必須將智能PID調節器(3)置于防爆控制箱內或將其安裝在非防爆區,且智能PID調節器(3)與調節閥(1)的控制信號線必須用屏蔽線(3芯、1.5平方)。
電動壓力調節閥控制方案
ZAZP-Y型分體式電動壓力調節閥采用電動單座調節閥( 或防爆型電動調節閥)、智能PID調節器+壓力變送器及3芯屏蔽線等附件組成,具有高控制精度,*高可達+0.2%的控制精度,調節性能及控制精度遠超過常規自力式壓力調節閥。
該閥采用自反饋系統,通過壓力變送器(4)采集被調介質壓力的實時變化,經智能PID調節器(3)轉換為DC4-20mA的標準控制信號來控制電動調節閥(1)的開啟度,能直接對蒸汽、熱氣、熱油等介質的壓力實行自動PID調節和控制。

1.電動調節閥 2.手動截止閥 3.智能PID調節器 4.壓力變送器 5.緩沖管 6.延長管 7. 壓力表組件
接線說明:
1、智能PID調節器(3)端子8.與端子24短接;
2、智能PID調節器(3)端于20接壓力變送器(3) B-;
3、智能PID調節器(3)端子7接壓力變送器(3) A+; .
4、智能PID調節器(3)端子25和端子26接電動調節閥(1)的端子5和端子6 (注意正負極) ;5、智能PID調節器(3)端子11和端子12接AC100-240V 50/60HZ電壓:
6、電動調節閥(1) 端子1和端子2接AC220V電壓;
7、延長管(6) 需現場配制,主要用于降低變送器工作溫度。
注:①所有儀表在出廠前均已調試完成,在現場只需按圖示接線完成即可正常工作,如現場控制值波動較大,請重新調試系統相關P、1、 D值,即使用智能PID調節器(3)自整定功能,具體操作步驟參見NHR5000型智能PID調節器使用說明書(P17之7.3條) ;
②由于智能PID調節器(3)無防爆型,安裝在要求防爆場合必須將智能PID調節器(3)置于防爆控制箱內或將其安裝在非防爆區,且智能PID調節器(3)與調節閥(1)的控制信號線必須用屏蔽線(3芯、1.5平方) 。
15900877899 15900877899